ネクステップ > (戸建(売買))地域から探す > 那珂川市 > 成竹戸建 > 物件詳細

成竹戸建

物件紹介

緑に囲まれた暮らしに憧れませんか?建物面積なんと広々165㎡!広い敷地面積81坪!リフォームのご相談も承ります!
SUMITSUKE那珂川のHPにも掲載されております。
https://sumitsuke.net/bank/4726

価格
2,450万円
所在地/交通
福岡県那珂川市大字成竹562-3
博多南線博多南」駅 徒歩89分
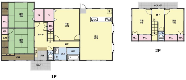
間取り/建物面積
5LDK

165.07㎡
  • お問い合わせ
  • 検討リストに追加

PHOTO GALLERY

印刷する
  • 【外観】 | 成竹戸建

    【外観】

  • 【間取り】 | 成竹戸建

    【間取り】

  • 【外観】 | 成竹戸建
  • 【居間・リビング】 | 成竹戸建
  • 【キッチン】 | 成竹戸建
  • 【居間・リビング】 | 成竹戸建
  • 【洋室】 | 成竹戸建
  • 【和室】 | 成竹戸建
  • 【和室】 | 成竹戸建
  • 【その他】 | 成竹戸建
  • 【洋室】 | 成竹戸建
  • 【洋室】 | 成竹戸建
  • 【洋室】 | 成竹戸建
  • 【洋室】 | 成竹戸建
  • 【前面道路含む現地写真】 | 成竹戸建

※写真や図と実際の現状とが異なる場合は現状を優先させていただきます。

設備条件

  • 陽当り良好
  • 眺望良好
  • プロパンガス
  • 公営水道
  • 公共下水
  • システムキッチン
  • 対面式キッチン
  • バス・トイレ別
  • トイレ2ヶ所

お問い合わせ

株式会社ネクステップ

0120-412-132

  • 〒811-1213
  • 福岡県那珂川市中原3丁目130 

10:00~17:00  定休日:水曜日・年末年始・夏季休暇・GW

物件お問い合わせ

無料!カンタン会員登録!お得情報満載!!
最新物件、未公開物件情報が閲覧いただけます!

新規会員登録

物件概要

【中古一戸建】 物件番号:87587509 情報更新日:2026年02月13日 次回更新予定日:2026年02月27日
所在地 福岡県那珂川市大字成竹562-3
交通
間取り/詳細 5LDK/
LDK 20.0帖/洋室 10.0帖/洋室 6.0帖/洋室 6.0帖/和室 8.0帖/和室 8.0帖
建物面積(坪数) 165.07㎡(49.93坪)
価格 2,450万円
駐車場/月額料金 有/-
土地の敷金/保証金 -/- 借地料/借地期間 -/-
土地権利 所有権 土地面積(坪数) 268.34㎡(81.17坪)
傾斜地部分面積 - 路地状敷地 -
私道負担面積/セットバック -/無 高圧線下面積 -
地目/地勢 宅地/平坦 接道状況 一方(南西 公道 6.0m 間口 19.0m)
建ぺい率/容積率 70%/200% 用途地域 無指定
都市計画 準都市計画区域 種別/構造 中古一戸建/木造
階建 2階建 築年月(築年数) 1991年 12月 (築34年)
総区画数/販売区画数 -/- 向き 南西
現況 空家 その他の法令上の制限 -
取引態様/引渡時期 専任媒介/即時 建築確認番号 -
物件番号 87587509 取引条件の有効期限 2026年02月27日
設備条件
  • 陽当り良好
  • 眺望良好
  • プロパンガス
  • 公営水道
  • 公共下水
  • システムキッチン
  • 対面式キッチン
  • バス・トイレ別
  • トイレ2ヶ所
取扱会社
  • 株式会社ネクステップ
  • 福岡県那珂川市中原3丁目130 
  • TEL:0120-412-132
  • 福岡県知事 (9) 第10812号
    建設業免許 福岡県知事(般-04)第90439号
    一級建築士事務所 福岡県知事登録 第1-62618号
  • 公益社団法人 全国宅地建物取引業保証協会
    公益財団法人 日本賃貸住宅管理協会
    一般社団法人 全国賃貸不動産管理業協会
    (公社)福岡県宅地建物取引業協会
QRコード

QRコード

このQRコードを読み取ることで、スマホでも物件情報を確認できます。

地図

※地図上に表示される物件の位置は付近住所に所在することを表すものであり、実際の物件所在地とは異なる場合がございます。

物件お問い合わせ

必要項目の入力

0/0
必須項目完了

確認画面へ
お進み下さい

0/0
必須項目完了

確認画面へ
お進み下さい

要望

任意

お名前

必須

フリガナ

必須

メールアドレス

必須

電話番号

必須

内容

必須

LINE電話等、直接お会いしない接客方法をご希望の方はその旨、遠慮なくお申し付けください。柔軟にご対応させて頂きます。
※ご連絡先のお名前、TEL、mailは正しい情報をご記入ください。匿名の場合は、ご対応等できかねる場合がございますので、ご協力賜りますようお願い申し上げます。

利用規約及びプライバシーポリシーを必ずお読みください。左記内容に同意いただいた場合は、確認画面へお進み下さい。

未入力項目があります

この物件を見た人はこちらの物件も見ています

恵子5丁目中古戸建

恵子5丁目中古戸建の画像

価格
2,490万円
種別
中古一戸建
間取
5DK
住所
福岡県那珂川市恵子5丁目
交通
博多南駅
徒歩34分

王塚台1丁目中古住宅

王塚台1丁目中古住宅の画像

価格
2,640万円
種別
中古一戸建
間取
4DK
住所
福岡県那珂川市王塚台1丁目
交通
博多南駅
徒歩26分

お問い合わせ

株式会社ネクステップ

会社画像

0120-412-132

10:00~17:00  定休日:水曜日・年末年始・夏季休暇・GW

  • 〒811-1213
  • 福岡県那珂川市中原3丁目130 

物件リクエスト

トップへ戻る